茅野市豊平山寺中古住宅

新着物件
|
| 所在地 | 長野県茅野市豊平字北原 豊平山寺上貸家 |
|---|---|
| 交通 | JR中央本線 茅野駅 バス(山寺上 乗16分 停歩4分) |
| 築年月 | 1993/06 | 新築/中古 | 中古 |
|---|---|---|---|
| 面積 | 計測方式 | 壁芯 | |
| バルコニー | 向き | 南 | |
| 建物階数 | 地上2階 | 部屋階数 | 2階 |
| 部屋/区画番号 | 3297-1 | 総戸/区画数 | 1 |
| 建物構造 | 木造 | ||
| 敷地全体面積 | 240.79m² | 延べ床面積 | 125.00m² |
| 管理形態 | 自主管理 管理人無 管理組合無 | ||
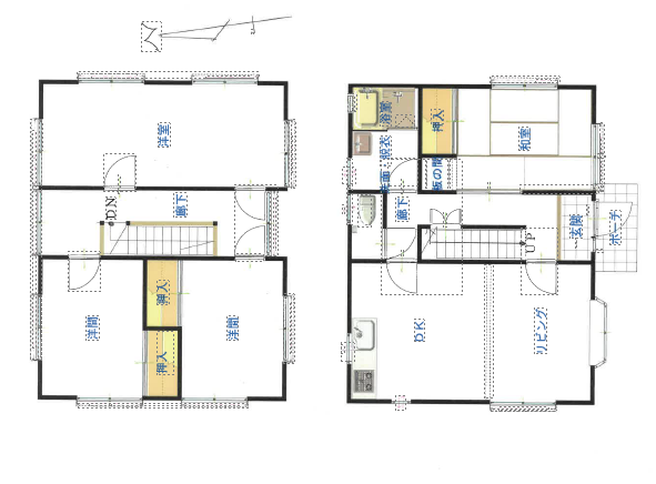
| 間取内容 |
LDK 17畳 1階 和室 7.3畳 1階 洋室 12.7畳 2階 洋室 7.3畳 2階 洋室 7.3畳 2階 |
||
| 地目 | 宅地 | 用途地域 | 無指定 |
| 土地面積 | 240.79m² (約72.84坪) | 土地面積計測方式 | 公簿 |
| セットバック | 無 | セットバック量 | |
| 建ぺい率 | 60% | 容積率 | 200% |
| 土地権利 | 所有権 | 接道状況 | 一方 |
| 接道方向1 | 西 | 接道間口1 | 9.5m |
| 国土法届出 | 不要 | ||
| 現況 | 空家 | 取引態様 | |
| 駐車場 | 空有 2台分 | 引渡/入居時期 | 即時 |
| 周辺環境 |
豊平小学校もしくは湖東小学校 茅野市立北部中学校 Aコープファーマーズピアみどり店まで545M セブンイレブン茅野堀店まで377M 茅野市立豊平小学校まで1475M 豊平郵便局まで4886M JA信州諏訪茅野北部支所まで511M 諏訪信用金庫北山支店まで2240M |
||
| 設備・条件 | |||
| 物件番号 | 510 | ||
| 自社物 | 自社物 | 状態 | 成約 |
| 特記事項 | メーターモジュール寸法で尺間より約18%広くなります 温水洗浄便座 プロパンガス 電気 上水道 下水道 ダブルロックドア 庭10坪以上 主要採光面:南向き 全室2面採光 外壁サイディング 隣接建物距離2m以上 全面棟無 整形地 閑静な住宅街 | ||
Loading...
※物件掲載内容と現況に相違がある場合は現況を優先と致します。



